HOME ABOUT COMMUNITY COMMERCIAL RESIDENTIAL APARTMENTS CONTACT

Listed Homes          «    »

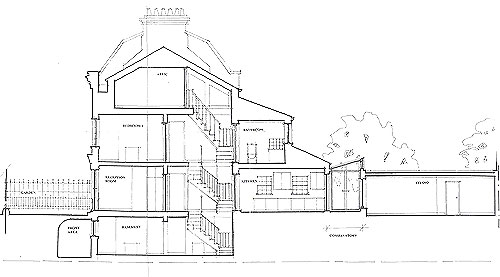
COBORN ROAD, E3:
Grade II Listed former shop (now a private residence) on the Coborn Estate in Bow.  The work included complete restoration of the shopfront elevation, new glazed rear extension as well as internal re-modelling and refurbishment.